без комісії
Рівненська, 4 — Продається торгівельний майданчик
(г. Луцк)
62000 $
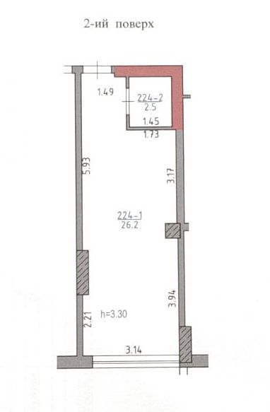
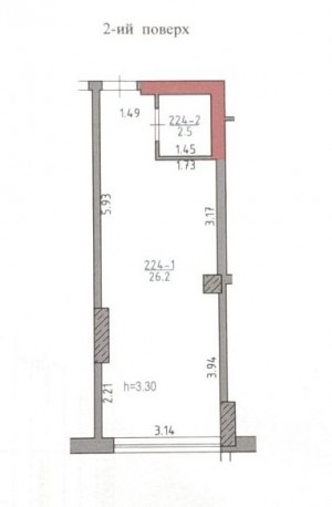
Загальна площа: 29 кв.м
Поверх: 1
К-ть поверхів: 2
Продаж комерційного приміщення в ЖК "Kyiv Sky"
РОЗТАШУВАННЯ: м. Луцьк, вул. Рівненська, 4. Розвинена інфраструктура, поруч: аптека, магазин побутової хімії, продуктовий магазин, зупинки громадського транспорту, пошта. Активний автомобільний, пішохідний трафік. Зручна транспортна розв'язка. Фасадне приміщення.
ХАРАКТЕРИСТИКИ: - площа: 29 м.кв. - відкрите планування - 2-ий поверх, ліфт - висота стелі: 330см. - спільний вхід - свій санвузол - можливість розміщення рекламної вивіски - парковка на більше 12 місць - великі вікна