|
|
ул. Есенина — Здається торгівельний майданчик
(г. Кривой Рог, Дзержинский район)
35000 грн.
Загальна площа: 130 кв.м
Поверх: 1
К-ть поверхів: 3
Оренда приміщення вул. Д.Дудаева (Єсеніна) "96 квартал"
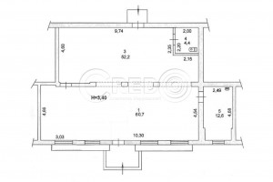
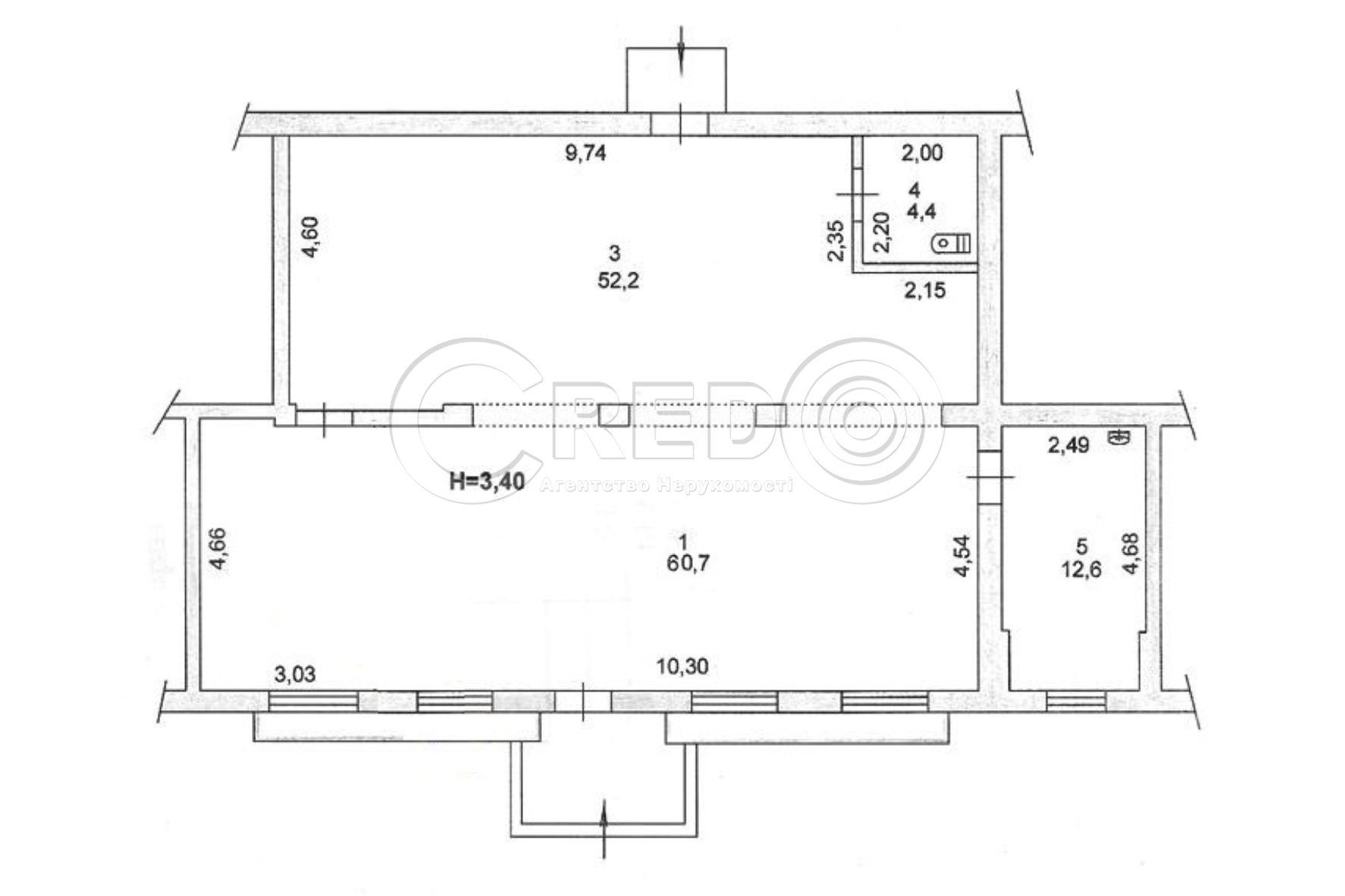
Про об’єкт: - перший поверх 3-х поверхового будинку - розташований над проїзною частиною - окремий вхід
Планування об’єкту: - загальна площа - 130 кв.м - торгівельний зал - 113 кв.м - Н = 3,40 м - санвузол - підсобне приміщення
Комунікації: - центральне електропостачання 5 кВт; - центральне водопостачання, каналізація - центральне опалення - кондиціювання - пожарна та охоронна системи - додатковий вхід.
Логістична розв’язка: - розташоване приміщення на "96 кварталі" - поряд станція швидкісного трамваю - пішохідний та проїздний трафік.
Оренда 35 000грн + ком.послуги Послуга агенції 50%
За будь-якими питаннями за цією або схожими пропозиціями звертайтесь за номером телефону 067 696 16 51. З повагою, команда Credo!
|
Оновлено: 19 грудня 2025
Розміщено: 8 травня 2025
|
|
Вам также могут подойти
Оновлено: 24 листопада 2025
Розміщено: 22 листопада 2021
|
площа 30, поверх 1/5
г. Кривой Рог, ул. Косиора
25000 $
Літвинова Ірина Вікторівна
|
Продаж магазину на "Соцмісті" - Металургійний район - вул. Соборності
Розташування: -район " Соцмісто" -розташоване по "червоній лінії" -зупинка " Плавальний басейн"
Техничні характиристики: - вбудований в 1 поверх 5-ти…
Детальніше
|
Оновлено: 26 листопада 2025
Розміщено: 5 серпня 2025
|
площа 52, поверх 1/5
г. Кривой Рог, ул. Вокзальная
22000 грн.
Літвинова Ірина Вікторівна
|
Оренда магазину вул. Вокзальна - район з.д.вокзал "Червона" - Металургійний район - "червона лінія"
Про об’єкт: - загальна площа - 52,6кв.м - торгівельна зала - 35,9кв.м - висота стелі -…
Детальніше
|
Оновлено: 26 грудня 2025
Розміщено: 7 жовтня 2025
|
площа 54, поверх 1/5
г. Кривой Рог, пр. Металлургов
29000 $
Літвинова Ірина Вікторівна
|
Продаж приміщення пр. Металургів Нежитлове приміщення вільного призначення над проїзною частиною.
Технічні характеристики: - Приміщення в доброму стані - Стіни під фарбування - На підлозі кахель - Встановлені ролети -…
Детальніше
|
Коментарі
|