Вхід на сайт

Ел. пошта:
Пароль:

Реєстрація на сайті

Призвіще: Область:
Ім'я: Населений пункт:
    По батькові: Номер телефону:
    Ел. пошта: Компанія:
      Пароль: Посада:
      Повторіть пароль: Рік початку роботи:
      Фото:
      З правилами розміщення об'єктів погоджуюсь

      Забули пароль?

      Вкажіть ел. пошту — ми надішлемо Вам новий пароль для входу
      Ел. пошта:

      Проблема на сайті

      Закрити
      Ваш e-mail:
      (необов'язково)
      Розкажіть нам, що сталось

      пл. Артема — Здається торгівельний майданчик

      (г. Кривой Рог, Саксаганский район)

      35000 грн.

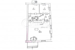
      Загальна площа: 101 кв.м

      Поверх: 1

      К-ть поверхів: 4

      Оренда нежитлового приміщення площа В.Великого «Червона лінія»

      Приміщення кутове, має два входи, парковка.
      Добре проглядається з дороги, великий пішохідний та автомобільний трафік.

      - Особливості об’єкту:
      - Розташоване на 1/5-ти поверхового будинку
      - Загальна площа 101.1кв.м.
      - Висота стелі Н- 2.75м.
      - Два входи
      - Пандус
      - Парковка біля приміщення

      - Технічні характеристики:
      - Стіни гіпсокартон під покраску
      - На підлозі кахель
      - На вікнах ролети
      - Санвузол

      - Комунікації:
      - Водопостачання
      - Центральна каналізація
      - Електроенергія: 5кВт
      - Центральне опалення
      - Кондиціонер

      - Локація:
      Поряд зупинка громадського транспорту, відділення банку, салон краси, Палац культури, паркова зона, спортивний комплекс, кафе, суші бар, та інші магазини.

      - Оренда 35 000грн + коммун.послуги.

      За деталями звертайтесь за телефоном.
      З повагою, команда CREDO!

      Надіслати скаргу

      Закрити
      Поскаржитися на об'єкт «пл. Артема (г. Кривой Рог, Саксаганский район)»
      Ваш коментар:(Необов'язково)
      Ваша скарга буде надіслана ріелтору, що розмістив об'єкт, а також адміністрації сайту АФНУ.
      Ваше ім'я:
      (Обов'язково)
      Ваш e-mail для відповіді:
      (Обов'язково)

      Вам также могут подойти

      ул. Софьи Перовской (г. Кривой Рог, Саксаганский район) - Продається торгівельний майданчик, 22500 $ - АФНУ

      Оновлено: 24 березня

      Розміщено: 30 травня 2023

      Продається торгівельний майданчик

      площа 44, поверх 1/4

      г. Кривой Рог, ул. Софьи Перовской

      22500 $

      Літвинова Ірина Вікторівна

      Продаж приміщення біля зупинки "пл. В.Великого"
      вул. С.Перовської.

      Про об'єкт:
      - Загальна площа - 44кв.м.
      - Торг.пл.30.2кв.м.

      Комунікації:
      - Центральний водопровід.
      - Електрика.
      - Центральна каналізація.
      - Асфальтована дорога.

      Локація:…

      Детальніше

      мкрн. Сонячний (г. Кривой Рог, Саксаганский район) - Продається торгівельний майданчик, 23500 $ - АФНУ

      Оновлено: 25 березня

      Розміщено: 6 жовтня 2025

      Продається торгівельний майданчик

      площа 39, поверх 1/2

      г. Кривой Рог, мкрн. Сонячний

      23500 $

      Літвинова Ірина Вікторівна

      Продаж магазину мікрорайон Сонячний
      - Саксаганський район
      - окремо розтошований двоповерховий ТК

      Технічні характеристики:
      - перший поверх двоповерхового комплексу
      - приміщення в робочому стані
      - гарний фасад
      - парковка біля…

      Детальніше

      пер. Бульварный (г. Кривой Рог, Саксаганский район) - Продається торгівельний майданчик, 24000 $ - АФНУ

      Оновлено: 25 березня

      Розміщено: 6 жовтня 2025

      Продається торгівельний майданчик

      площа 43, поверх 1/5

      г. Кривой Рог, пер. Бульварный

      24000 $

      Літвинова Ірина Вікторівна

      Продаж магазину провулок Бульварний,5
      - Саксаганський район
      - зупинка "готель Київ"

      Технічні характеристики:
      - перший поверх 5-ти поверхового житлового будинку
      - окремий вхід
      - приміщення в гарному станні, діюче
      -…

      Детальніше

      Коментарі