без комісії
ул. Кадетский Гай, 12 — Продається квартира
(г. Киев, Соломенский район)
69000 $
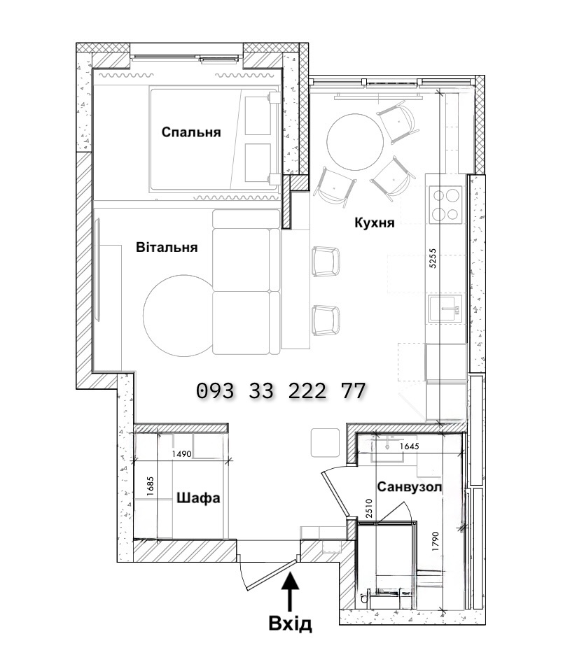
Загальна площа: 40 кв.м
Жила площа: 15 кв.м
Площа кухні: 12 кв.м
Кімнат: 1
Поверх: 17
К-ть поверхів: 26
Продаж стильної однокімнатної квартири.
ЖК Медовий, вул. Кадетський Гай 12.
Право власності.
Без комісії для покупця!
Автор оголошення проти дублювання в рекламі!
17/26 поверхового будинку.
Будинок: - введено в експлуатацію - монолітно-каркасна конструкція - утеплення базальтовою ватою
Інфраструктура: - будинок розсташований поруч з каскадом Совських озер і Солом'янським лісопарком - новобудова знаходиться в зеленій зоні, тут є де відпочити з сім'єю на природі, є місця для заняття спортом і прогулянок, 3 озера для ловлі риби та облаштовані місця для відпочинку - у шестистах метрах є дитячий садок і школа, гімназія, аптека, фітнес центр. - у радіусі 800 метрів розташовані два супермаркети Novus, Fora, та багато невеликих продуктових магазинів, Dominoʼs Pizza, Tbiliso, кафе. - на території ЖК є кафе та міні маркети - закрита територія - постійна охорона 24/7 - ключовий доступ - 3 ліфти(вантажний, два пасажирські) - лише в цьому будинку є свій власний підземний паркінг в який можна спуститись ліфтом (також працює як укриття) - в цьому будинку встановлений потужний генератор який забезнечує роботу ліфта, світла в місцях загального користування, водопостачання та опалення під час відключень електроенергії. - 17 поверх з гарним видом з вікон на Совські ставки та Печерський район Києва - до метро Вокзальна – 15 хвилин на автомобілі - до метро Шулявська - 20 хвилин на автомобілі - до Севастопольської площі – 5 хвилин на автомобілі - до центру 15-20 хвилин на автомобілі
Квартира: - загальна площа 40,3 кв.м. - ремонт виконано по дизайн-проекту студії з просторим плануванням - ремонт виконано на 75%, що дає можливість завершити згідно свого бачення інтерʼєру. - простора кухня-студія з гостьовою зоною - затишна спальня зона з видом на озера та центр Києва - місце для гардеробної кімнати - система антипотоп в ванній кімнаті - система фільтрації вхідної води в ванній кімнаті - система підігріву полу у передпокої, на кухні та у санвузлі. - встановлено бойлер Ariston VELIS PRO 80. - ремонт виконаний професійною командою дизайнерів та будівельників.з
Запрошуємо вас на перегляд для обговорення умов угоди.