Вхід на сайт

Ел. пошта:
Пароль:

Реєстрація на сайті

Призвіще: Область:
Ім'я: Населений пункт:
    По батькові: Номер телефону:
    Ел. пошта: Компанія:
      Пароль: Посада:
      Повторіть пароль: Рік початку роботи:
      Фото:
      З правилами розміщення об'єктів погоджуюсь

      Забули пароль?

      Вкажіть ел. пошту — ми надішлемо Вам новий пароль для входу
      Ел. пошта:

      Проблема на сайті

      Закрити
      Ваш e-mail:
      (необов'язково)
      Розкажіть нам, що сталось

      ул. 22-го Партсъезда — Продається торгівельний майданчик

      (г. Кривой Рог, Дзержинский район)

      330000 $

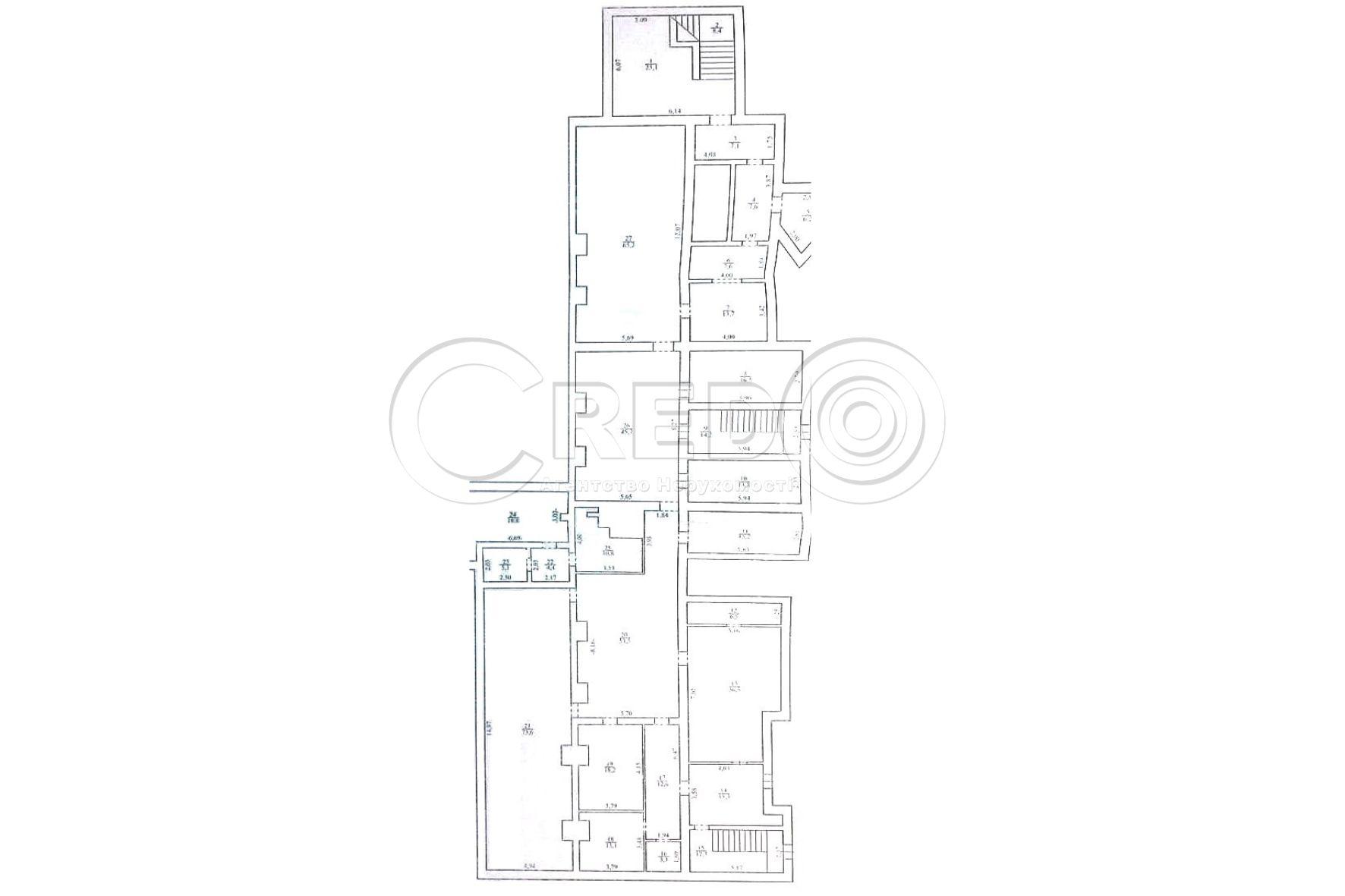
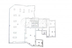
      Загальна площа: 986 кв.м

      Поверх: 1

      К-ть поверхів: 9

      Продаж нежитлового приміщення вул. В.Матусевича
      Приміщення кутове, має два входи, великі вітражні вікна.
      Добре проглядається з дороги, великий пішохідний та автомобільний трафік.

      Особливості об’єкту:
      - Розташоване на 1-му поверху
      - Загальна плща 986.9кв.м.
      - Перший поверх 482кв.м.
      - Підвал 504.9кв.м
      - Висота стелі Н - 3м.
      - Два входи
      - Вітражні вікна
      - Парковка біля приміщення

      Технічні характеристики:
      - Стіни гіпсокартон під фарбування
      - На підлозі кахель
      - Замінена проводка
      - Примусова вентиляція
      - Сан.вузол

      Комунікації:
      - Водопостачання
      - Центральна каналізація
      - Електроенергія: 380V, 150кВт.

      Логістична локація:
      Поряд Міська Рада, КНУ, Цирк, ресторан, ринок, розважальний центр, магазини.

      Продаж – 330 000 $
      За будь-якими питаннями за цією або схожими пропозиціями звертайтесь за номером телефону 098 985 09 08.
      З повагою, команда Credo!

      Надіслати скаргу

      Закрити
      Поскаржитися на об'єкт «ул. 22-го Партсъезда (г. Кривой Рог, Дзержинский район)»
      Ваш коментар:(Необов'язково)
      Ваша скарга буде надіслана ріелтору, що розмістив об'єкт, а також адміністрації сайту АФНУ.
      Ваше ім'я:
      (Обов'язково)
      Ваш e-mail для відповіді:
      (Обов'язково)

      Коментарі