без комісії
ул. Нижнеключевая, 14 — Продається квартира в новобудові
(г. Киев, Соломенский район)
85500 $
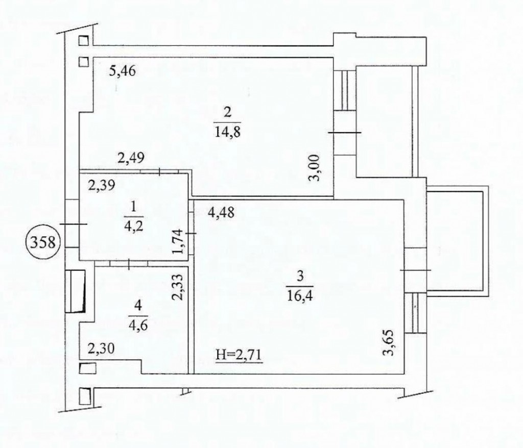
Загальна площа: 43.7 кв.м
Жила площа: 16.4 кв.м
Площа кухні: 14.8 кв.м
Кімнат: 1
Поверх: 8
К-ть поверхів: 25
Без комісії! Пропонується на продаж сучасна і максимально комфортна однокімнатна квартира в ЖК Кампус по вул. Нижньоключова 14. Площа: 43.7 м2. Невисокий 8 поверх в 25 поверховій новобудові! В квартирі окрема велика кухня - вітальня з просторим заскленим балконом та окрема спальна кімната з «холодним балконом». В квартирі виконаний якісний ремонт та встановлені всі сучасні меблі та вся необхідна побутова техніка. Меблі та обладнання включають у себе вбудовану зручну кухню, двоспальне ліжко з матрацем, розкладний великий диван, дві шафи та обідній стіл з стільцями. У квартирі є кондиціонер, варильна панель, духовка, посудомийна та пральна машина, бойлер, холодильник та витяжка. Це ідеальний варіант для тих, хто цінує комфорт, безпеку та якісний ремонт. Поряд чудова інфраструктура: банки, аптеки, магазини, кавʼярні і т.д. В комплексі закрита охороняєма територія. Є гостьові паркомісця та підземний паркінг. Дитячі та спортивні майданчики у внутрішньому дворі. Також в будинку встановлено систему автономного енерго живлення: інвертори з акумуляторами та генератор. При відключеннях світла працює ліфт, є вода , опалення та інтернет. В будинку своя котельня. Є 2 укриття! Запрошуємо на перегляд і ви точно закохаєтесь в це житло. Це дійсно той варіант коли - заїхати і жити! Перегляди по попередній домовленості. З колегами співпрацюємо без дублювання реклами!
Без комісії! Продаж 2-кімн. квартири в 1 секції, в стильному новому ЖК Олімпік Парк. Комплекс комфорту класу! Всього в 200 метрах від метро Бориспільська та 5 хвилинах ходьби метро Вирлиця!…
Без комісії! Продаж 2-кімн.квартири в 2 секції, в стильному новому ЖК Олімпік Парк. Комплекс комфорту класу! Всього в 200 метрах від метро Бориспільська та 5 хвилинах ходьби метро Вирлиця! Будинок…
Без комісії! Я власник! Продається супер видова! 2-кімнатна квартира на 24 поверсі 26 поверхового будинку в ЖК Урловський 1 ( вул. Причальна,11 ) Видовий перший будинок. Буде здаватись в експлуатацію…