Вхід на сайт

Ел. пошта:
Пароль:

Реєстрація на сайті

Призвіще: Область:
Ім'я: Населений пункт:
    По батькові: Номер телефону:
    Ел. пошта: Компанія:
      Пароль: Посада:
      Повторіть пароль: Рік початку роботи:
      Фото:
      З правилами розміщення об'єктів погоджуюсь

      Забули пароль?

      Вкажіть ел. пошту — ми надішлемо Вам новий пароль для входу
      Ел. пошта:

      Проблема на сайті

      Закрити
      Ваш e-mail:
      (необов'язково)
      Розкажіть нам, що сталось

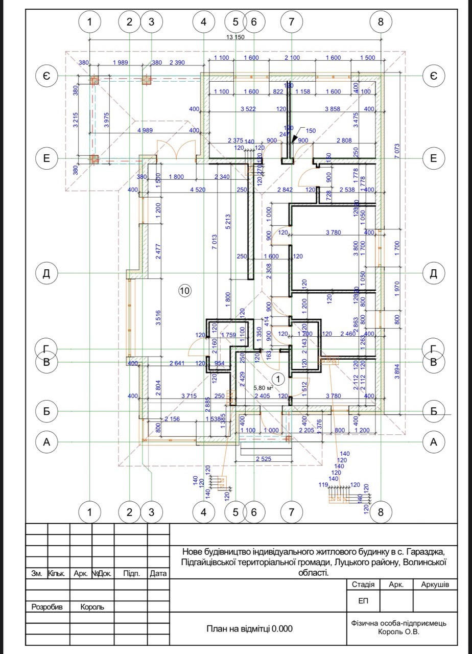
      без комісії ул. Яблунева — Продається будинок

      (с. Гаразджа, Луцкий район)

      109000 $

      Загальна площа: 140 кв.м

      Площа ділянки: 6 сот

      Кімнат: 3

      К-ть поверхів: 1

      Будинок в передмісті Луцька с.Гаразджа.
      Будинок, який закохує з першого погляду - панорамні вікна, тераса та комфорт для всієї сім’ї
      Просторий, світлий і затишний будинок 140 м² на ділянці 6 сотих. Продумане планування та багато природного світла створюють відчуття простору та тепла.
      Планування:
      3 окремі кімнати - для сну, роботи та відпочинку
      Простора кухня-вітальня з панорамними вікнами
      2 санвузли
      Велика тераса - ідеальна для ранкової кави та вечірніх зустрічей
      Характеристики та комунікації:
      Площа будинку: 140 м²
      Ділянка: 6 сотих
      Газ підведений
      Скважина 47 м
      Септик на три кола
      Рівна ділянка, хороший під’їзд, тихий і затишний район - все готове для вашої сім’ї.
      Сучасний будинок 140 м² у затишному районі .

      Надіслати скаргу

      Закрити
      Поскаржитися на об'єкт «ул. Яблунева (с. Гаразджа, Луцкий район)»
      Ваш коментар:(Необов'язково)
      Ваша скарга буде надіслана ріелтору, що розмістив об'єкт, а також адміністрації сайту АФНУ.
      Ваше ім'я:
      (Обов'язково)
      Ваш e-mail для відповіді:
      (Обов'язково)

      Коментарі