Вхід на сайт

Ел. пошта:
Пароль:

Реєстрація на сайті

Призвіще: Область:
Ім'я: Населений пункт:
    По батькові: Номер телефону:
    Ел. пошта: Компанія:
      Пароль: Посада:
      Повторіть пароль: Рік початку роботи:
      Фото:
      З правилами розміщення об'єктів погоджуюсь

      Забули пароль?

      Вкажіть ел. пошту — ми надішлемо Вам новий пароль для входу
      Ел. пошта:

      Проблема на сайті

      Закрити
      Ваш e-mail:
      (необов'язково)
      Розкажіть нам, що сталось

      без комісії вул. Під Голоском, 4 — Продається квартира

      (г. Львов, Шевченковский район)

      540 $ за кв.м.

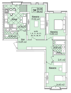
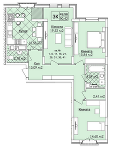
      Загальна площа: 46 кв.м

      Жила площа: 16 кв.м

      Площа кухні: 15 кв.м

      Кімнат: 1

      Поверх: 4

      Розташування Новобудови Львова, Шевченківський р-н
      Будівельна адреса вул. Під Голоском, 4. До оперного театру 10 хвилин.
      Усі необхідні документи в наявності
      Декларація про початок будівництва, містобудівні умови, технічні умови.
      Статус будівництва (на 10.03.2017)
      Здача — 3 кв. 2018, виритий котлован
      Продаж квартир в наявності на 10.03.2017
      Здача — 3 кв. 2018
      Ціна за м2 540 у. о.
      1к від 45.76 м2
      2к від 57.92 м2
      3к від 86.98 м2
      Дворівневі від 88.64 м2

      Поверховість 10
      Технологія будівництва монолітно-каркасна
      Стіни цегла
      Утеплення мінеральна вата, пінопласт
      Опалення індивідуальне
      Висота стелі 2,7 м
      Кількість квартир 140
      Паркінг підземний, гостьовий
      За докладнішою інформацією звертатися за телефоном
      (067) 748-71-09 Інна

      Надіслати скаргу

      Закрити
      Поскаржитися на об'єкт «вул. Під Голоском, 4 (г. Львов, Шевченковский район)»
      Ваш коментар:(Необов'язково)
      Ваша скарга буде надіслана ріелтору, що розмістив об'єкт, а також адміністрації сайту АФНУ.
      Ваше ім'я:
      (Обов'язково)
      Ваш e-mail для відповіді:
      (Обов'язково)

      Коментарі