Освитянская, 6 — Продається заклад громадського харчування
(г. Полтава, Октябрьский район)
2000000 $
Загальна площа: 1100 кв.м
К-ть поверхів: 9
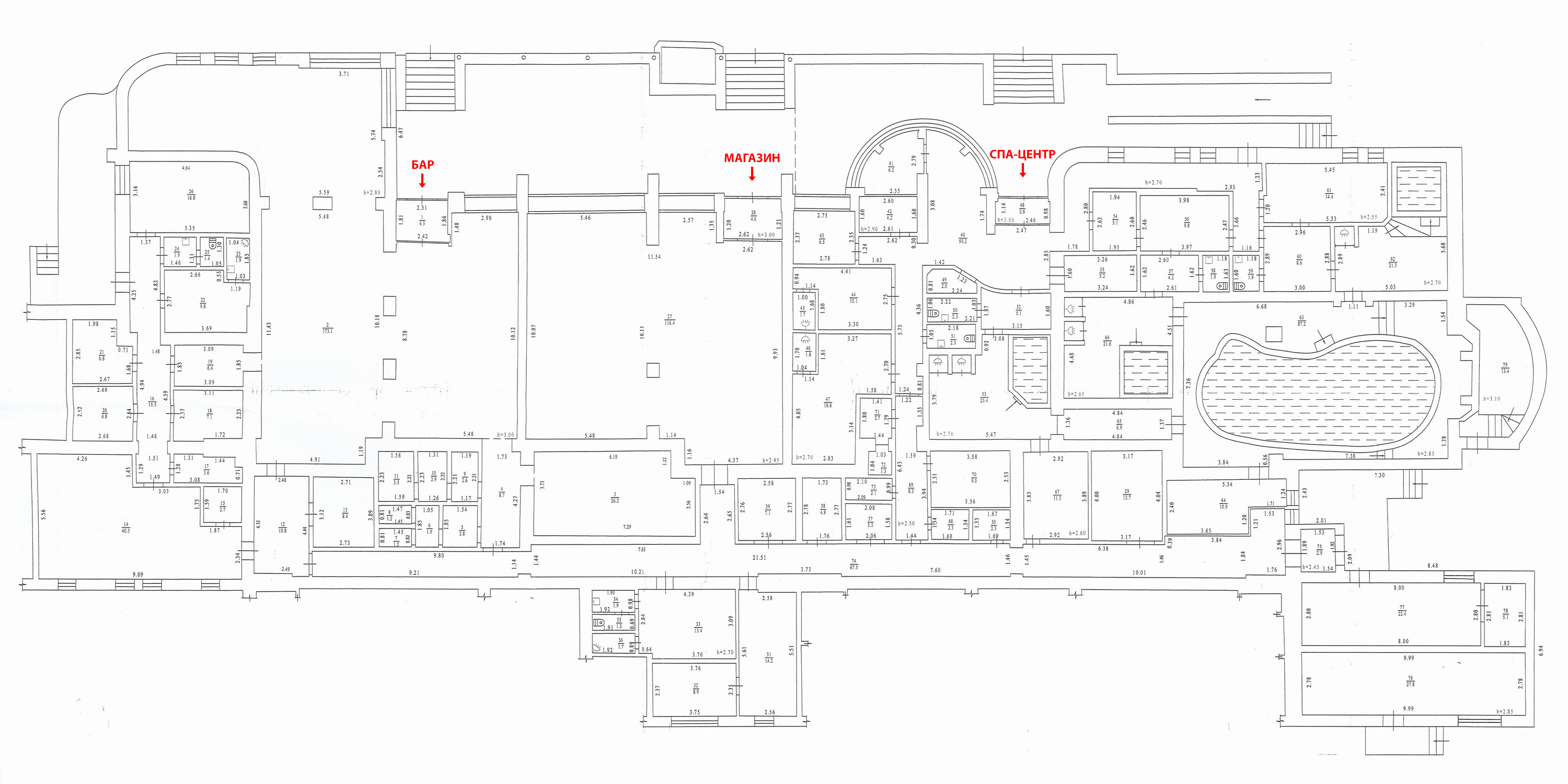
Мы предлагаем приобрести по хорошей цене целый комплекс предприятий, которые могут работать как самостоятельные единицы, так и взаимовыгодно дополнять друг друга. Оздоровительный СПА комплекс в котором находятся 3 разных сауны, купели — все рассчитано на самого взыскательного клиента. Просторный бассейн с прекрасной лаунж — зоной для отдыха и расслабления. Массажные кабинеты со всем необходимым оборудованием. Также имеется просторный паб, который сохраняет потрясающую атмосферу и уют. Прекрасный VIP — зал для индивидуальных заказов — банкеты, совещания и встречи. Идеально подходит для презентаций, праздников, проведения юбилеев, Дней рождений и любых празднований. Летняя терраса с живыми цветами создает легкое игривое настроений, хорошо защищена от солнца, находится в тихой зоне города. Идеально для семейного отдыха и отличного времяпрепровождения. Рядом находится продуктовый магазин, который обслуживает жителей микрорайона. На каждый вид бизнеса — есть свой отдельный вход, что позволяет работать им автономно. Общая площадь 1100м2, своя генераторная — нет проблем с перебоями электроэнергии, необходимое напряжение в 380В для корректной работы СПА — комплекса и холодильного оборудования продуктового магазина. Также Вы сможете приобрести отдельное помещение для персонала. Или квартиру для себя для эффективного управления своим бизнес-проектом, которая находится в этом же здании Нужна ли реклама совершенству? Если совершенство — это Вы, то этот комплекс — для Вас.