Вхід на сайт

Ел. пошта:
Пароль:

Реєстрація на сайті

Призвіще: Область:
Ім'я: Населений пункт:
    По батькові: Номер телефону:
    Ел. пошта: Компанія:
      Пароль: Посада:
      Повторіть пароль: Рік початку роботи:
      Фото:
      З правилами розміщення об'єктів погоджуюсь

      Забули пароль?

      Вкажіть ел. пошту — ми надішлемо Вам новий пароль для входу
      Ел. пошта:

      Проблема на сайті

      Закрити
      Ваш e-mail:
      (необов'язково)
      Розкажіть нам, що сталось

      без комісії ул. Солидарности — Продається будинок

      (с. Ревное, Бориспольский район)

      48000 $

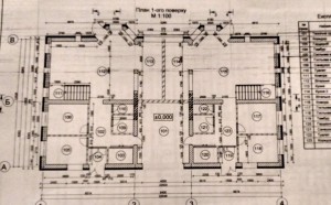
      Загальна площа: 482 кв.м

      Площа ділянки: 22 сот

      Кімнат: 8

      К-ть поверхів: 2

      Продажа дома- дом дуплекс на две семьи или бизнеса
      Бориспольский район, с.Ревне.
      Незавершенное строительство.
      Авторский проект.
      22 км до Киева по Бориспольской автотрассе.
      Дом в 2 этажа. Кирпичный.
      Крыша металлочерепица, уже с утеплением.
      Две половины дома по 220 метров, между ними помещение под коммуникации и хозблок.
      Высокие потолки. Свободная планировка.
      Возможен дальнейший авторский надзор архитектора.

      Коммуникации -электричество, проект на газ.Скважина на участке.
      Проводной интернет по улице.
      Разрешение на строительство.
      Асфальтированная дорога вдоль участка. Тихая улица.

      Также это удачная инвестиция для строительных фирм - Отличный проект для достройки под ключ для дальнейшей продажи частями или целиком, как дома- дуплекса или 4-8ми квартирного дома.
      Цена 100 долларов за метр дома- реальная экономия на строительстве и материалах.
      Без комиссии!

      Надіслати скаргу

      Закрити
      Поскаржитися на об'єкт «ул. Солидарности (с. Ревное, Бориспольский район)»
      Ваш коментар:(Необов'язково)
      Ваша скарга буде надіслана ріелтору, що розмістив об'єкт, а також адміністрації сайту АФНУ.
      Ваше ім'я:
      (Обов'язково)
      Ваш e-mail для відповіді:
      (Обов'язково)

      Коментарі