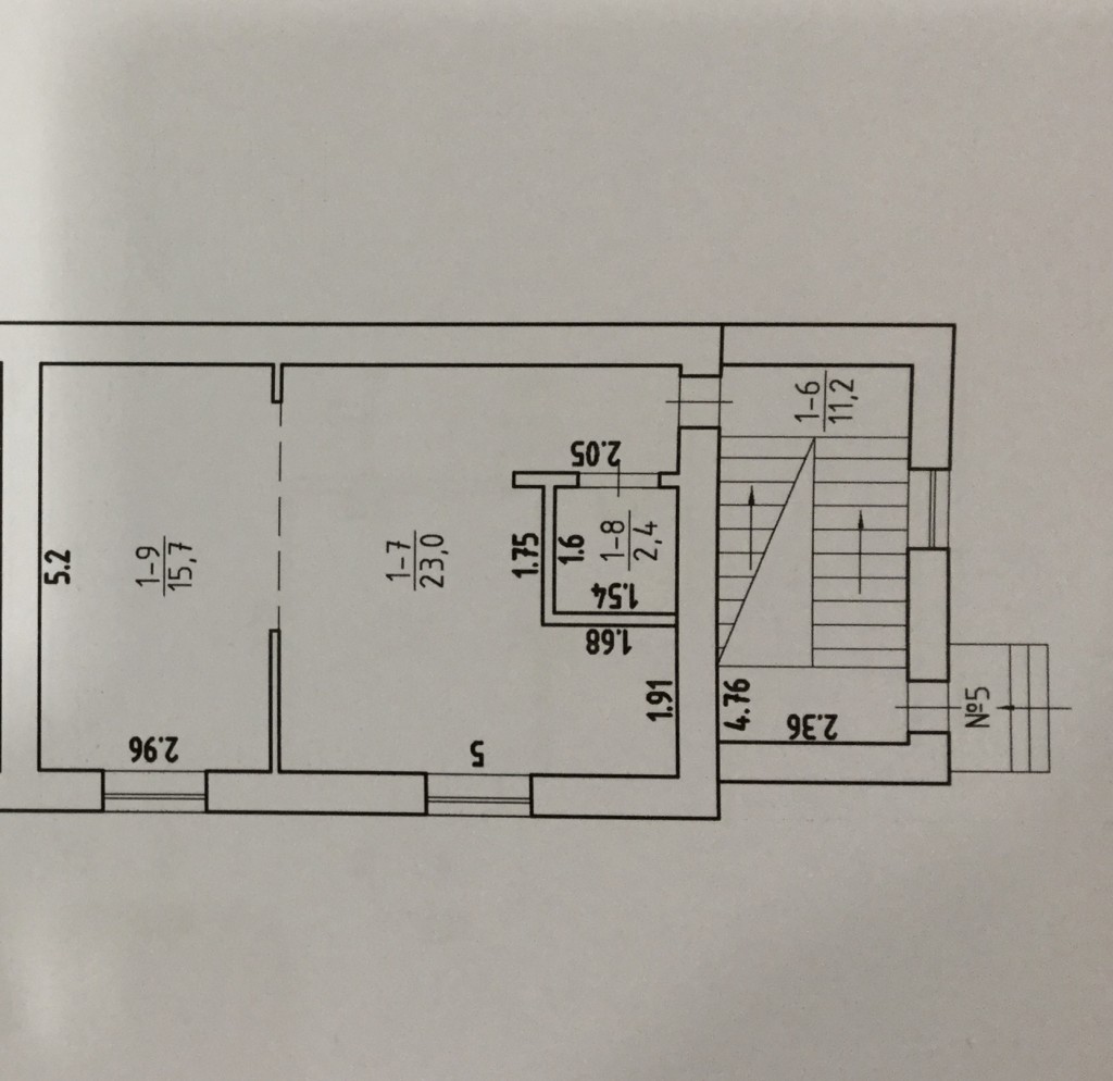
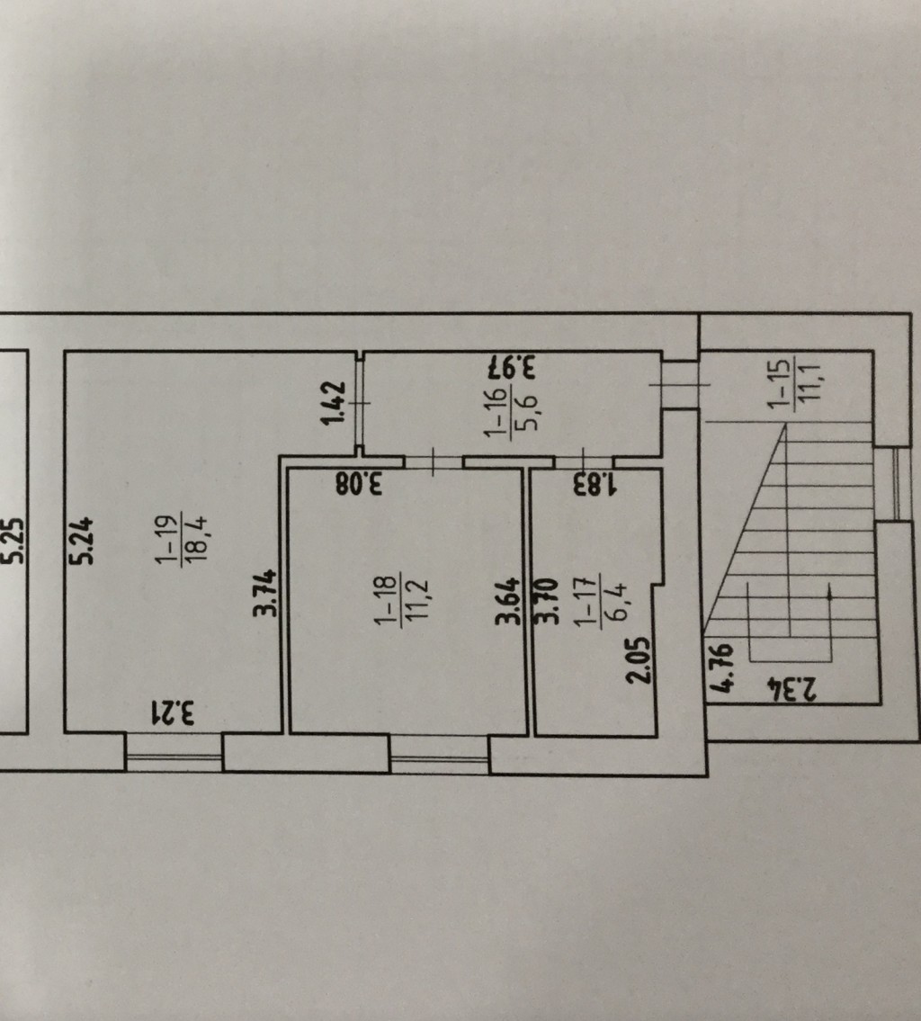
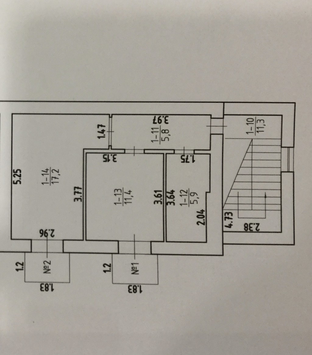
Таунхаус в центре - улица 6 Слободская-Пограничная, 157/74/23. Три этажа, 5 комнат. На каждом этаже есть санузел. Год постройки 2015. Перекрытия железобетонные. Стены, потолок - цементная штукатурка, полы - стяжка. В дом заведён газ. Автономное отопление. Есть двухконтурный котёл и газовая плита. Выполнена разводка по воде, теплу и электричеству. Дом утеплён. Выполнены все наружные отделочные работы. Есть внутренний дворик с беседкой и крытым местом для автомобиля. Два удобных въезда во двор.