Вхід на сайт

Ел. пошта:
Пароль:

Реєстрація на сайті

Призвіще: Область:
Ім'я: Населений пункт:
    По батькові: Номер телефону:
    Ел. пошта: Компанія:
      Пароль: Посада:
      Повторіть пароль: Рік початку роботи:
      Фото:
      З правилами розміщення об'єктів погоджуюсь

      Забули пароль?

      Вкажіть ел. пошту — ми надішлемо Вам новий пароль для входу
      Ел. пошта:

      Проблема на сайті

      Закрити
      Ваш e-mail:
      (необов'язково)
      Розкажіть нам, що сталось

      ул. Пушкина — Здається офіс

      (г. Полтава, Октябрьский район)

      4500 грн.

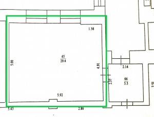
      Загальна площа: 30 кв.м

      Кімнат: 1

      Поверх: 2

      К-ть поверхів: 2

      Здам в оренду офісне приміщення площею 30 м2 в Центрі в районі
      Полтавського палацу дитячої творчості по вул. Пушкіна

      Характеристика приміщення:
      -загальний вхід, 2-й поверх;
      - площа офісу – 29,4 м2;
      - два санвузли на поверсі;
      - є кондиціонер
      - є можливість доукомплектувати офісними меблями

      - Вартість оренди: 4500 грн/міс+ комунальні послуги + одноразова комісія АН 50%

      Надіслати скаргу

      Закрити
      Поскаржитися на об'єкт «ул. Пушкина (г. Полтава, Октябрьский район)»
      Ваш коментар:(Необов'язково)
      Ваша скарга буде надіслана ріелтору, що розмістив об'єкт, а також адміністрації сайту АФНУ.
      Ваше ім'я:
      (Обов'язково)
      Ваш e-mail для відповіді:
      (Обов'язково)

      Вам также могут подойти

      Небесної Сотні (г. Полтава, Ленинский район) - Здається офіс, 6300 грн. - АФНУ

      Оновлено: 7 листопада 2025

      Розміщено: 19 лютого 2025

      Здається офіс

      2 кімн., площа 41.2, поверх 1/5

      г. Полтава, Небесної Сотні

      6300 грн.

      Остапченко Александр Степанович

      соучредитель (Агентство недвижимости "Альянс риэлти" Полтава)

      Суборенда 1 кабінету загальною площею 21,1 м² в приміщенні дитячого центру на Подолі
      Розташування: вул. Н. Сотні (зуп. Оптика, р-н маг. АТБ), окремий вхід з фасаду будинку
      Характеристика:
      • 1…

      Детальніше

      Коментарі