Вхід на сайт

Ел. пошта:
Пароль:

Реєстрація на сайті

Призвіще: Область:
Ім'я: Населений пункт:
    По батькові: Номер телефону:
    Ел. пошта: Компанія:
      Пароль: Посада:
      Повторіть пароль: Рік початку роботи:
      Фото:
      З правилами розміщення об'єктів погоджуюсь

      Забули пароль?

      Вкажіть ел. пошту — ми надішлемо Вам новий пароль для входу
      Ел. пошта:

      Проблема на сайті

      Закрити
      Ваш e-mail:
      (необов'язково)
      Розкажіть нам, що сталось

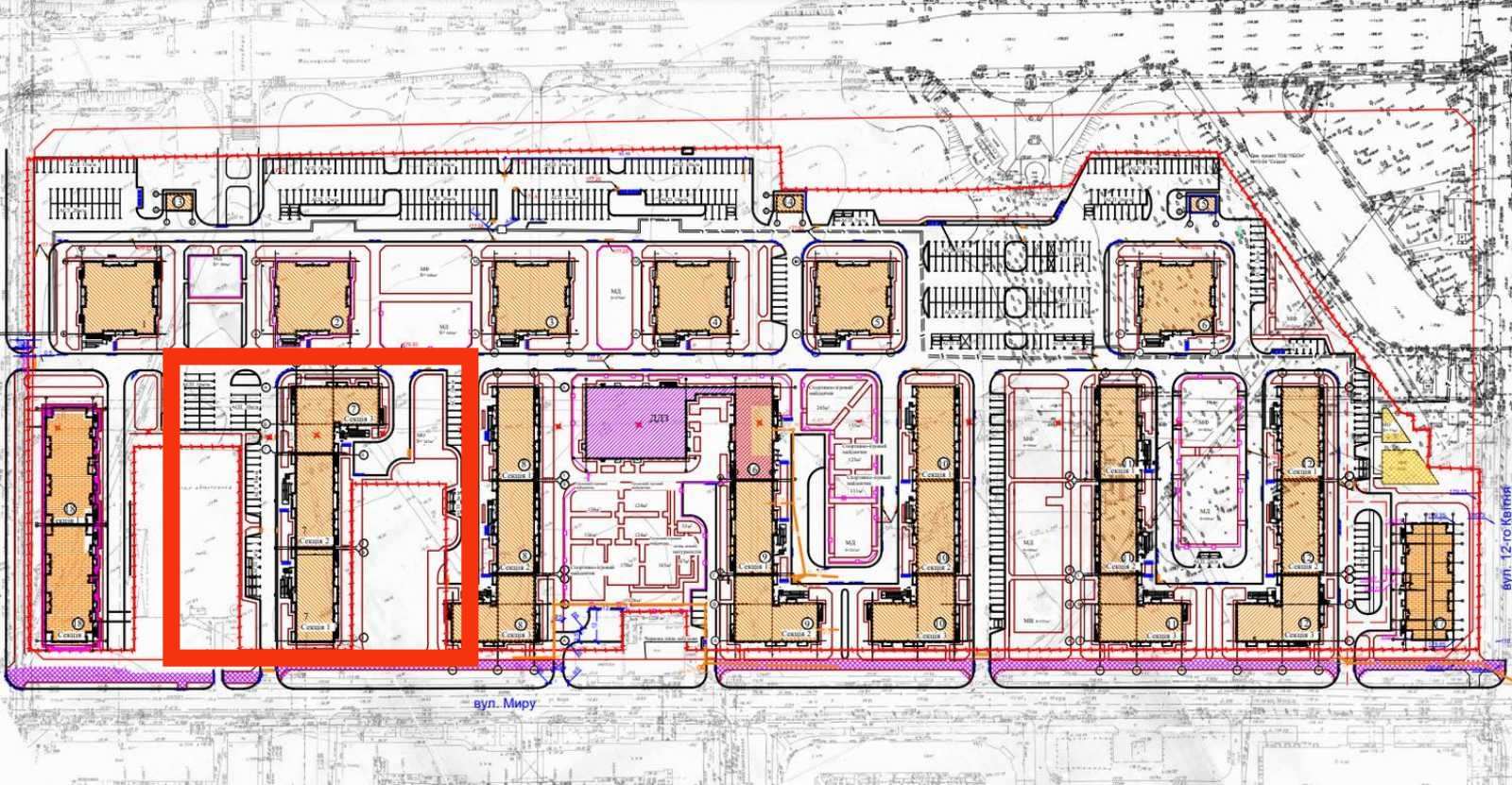
      ул. Мира — Продається квартира

      (г. Харьков, Орджоникидзевский район)

      34000 $

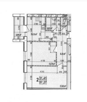
      Загальна площа: 54 кв.м

      Жила площа: 31 кв.м

      Площа кухні: 10 кв.м

      Кімнат: 2

      Поверх: 3

      К-ть поверхів: 9

      Продается 2-к квартира в новострое ЖК Мира-3, дом 7 от застройщика ЖС 1
      Площадь квартиры 57/32/10 м², планировка раздельная, комфортный 3/9 этаж, тёплая середина кирпичного дома. У нас прекрасный вид на проспект, благоустроенный двор с детской площадкой и парковкой для вашего авто.
      Дом на стадии подключения коммуникаций, выдают ордера, летом 2024 года можно будет приступать к ремонту.
      В квартире установлены металлопластиковые окна и батареи биметалл
      А горизонтальная разводка отопления позволит установить индивидуальный счетчик и экономить на коммунальных платежах.
      Расположение в районе ХТЗ обеспечивает удобство и доступность ко всем необходимым объектам инфраструктуры.
      Цена всего экв. 34000 - отличное предложение для тех, кто ценит качество, надежность и комфорт! Оформление переуступки оплачивает собственник
      Не упустите возможность стать обладателем этой уютной квартиры!
      Звоните для получения дополнительной информации и записи на просмотр.

      Надіслати скаргу

      Закрити
      Поскаржитися на об'єкт «ул. Мира (г. Харьков, Орджоникидзевский район)»
      Ваш коментар:(Необов'язково)
      Ваша скарга буде надіслана ріелтору, що розмістив об'єкт, а також адміністрації сайту АФНУ.
      Ваше ім'я:
      (Обов'язково)
      Ваш e-mail для відповіді:
      (Обов'язково)

      Вам также могут подойти

      пр. Московский, 270г (г. Харьков, Орджоникидзевский район) - Продається квартира, 40000 $ - АФНУ

      Оновлено: 1 жовтня

      Розміщено: 20 лютого 2024

      Продається квартира

      2 кімн., площа 74/38/14, поверх 9/9

      г. Харьков, пр. Московский, 270г

      40000 $

      Горовая Ольга Владимировна

      Риелтор (АН Алые Паруса)

      Продается просторная 2-к квартира в новострое ЖК Мира-3, от застройщика ЖС 1
      Площадь квартиры 74 м², этаж 9/9. Технический этаж предоставляет возможность создания второго уровня, а раздельная планировка обеспечивает функциональность…

      Детальніше

      пр. Московский, 270а (г. Харьков, Орджоникидзевский район) - Продається квартира, 36000 $ - АФНУ

      Оновлено: 1 жовтня

      Розміщено: 30 жовтня 2024

      Продається квартира

      2 кімн., площа 68/34/12, поверх 3/9

      г. Харьков, пр. Московский, 270а

      36000 $

      Горовая Ольга Владимировна

      Риелтор (АН Алые Паруса)

      Продается 2-к квартира в новострое ЖК Мира-3, от застройщика ЖС 1
      Площадь квартиры 67,7 м², комфортный 3/9 этаж. Раздельная планировка обеспечивает функциональность пространства. Просторная кухня 11,8 м, большая лоджия. У…

      Детальніше

      пр. Героев Сталинграда, 140 (г. Харьков, Коминтерновский район) - Продається квартира, 30000 $ - АФНУ

      Оновлено: 1 жовтня

      Розміщено: 30 червня 2023

      Продається квартира

      2 кімн., площа 46/29/6, поверх 7/9

      г. Харьков, пр. Героев Сталинграда, 140

      30000 $

      Горовая Ольга Владимировна

      Риелтор (АН Алые Паруса)

      Эксклюзив!
      Продам 2-х комнатную квартиру на Новых домах, пр. Героев Сталинграда
      Теплый кирпичный дом с уникальной планировкой.
      Общая площадь 46м, большая застекленная лоджия 7,5м.
      В квартире жилое состояние, все окна…

      Детальніше

      Коментарі